Listing Tools

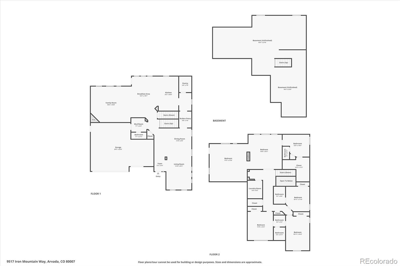
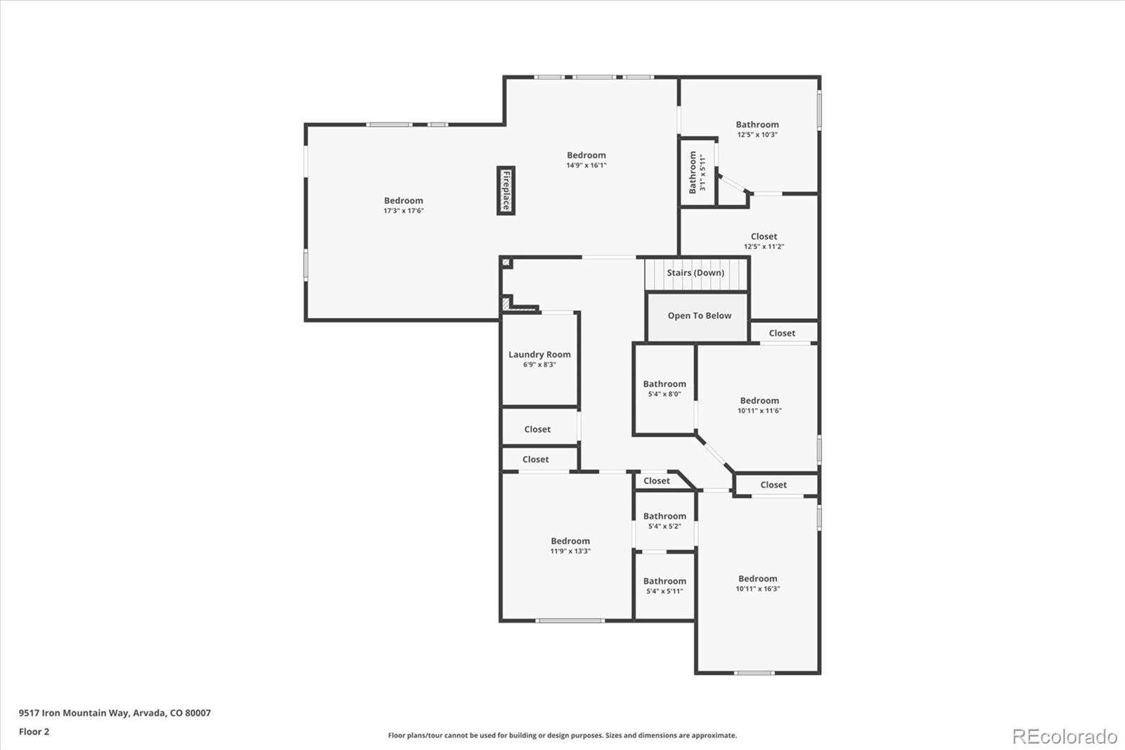
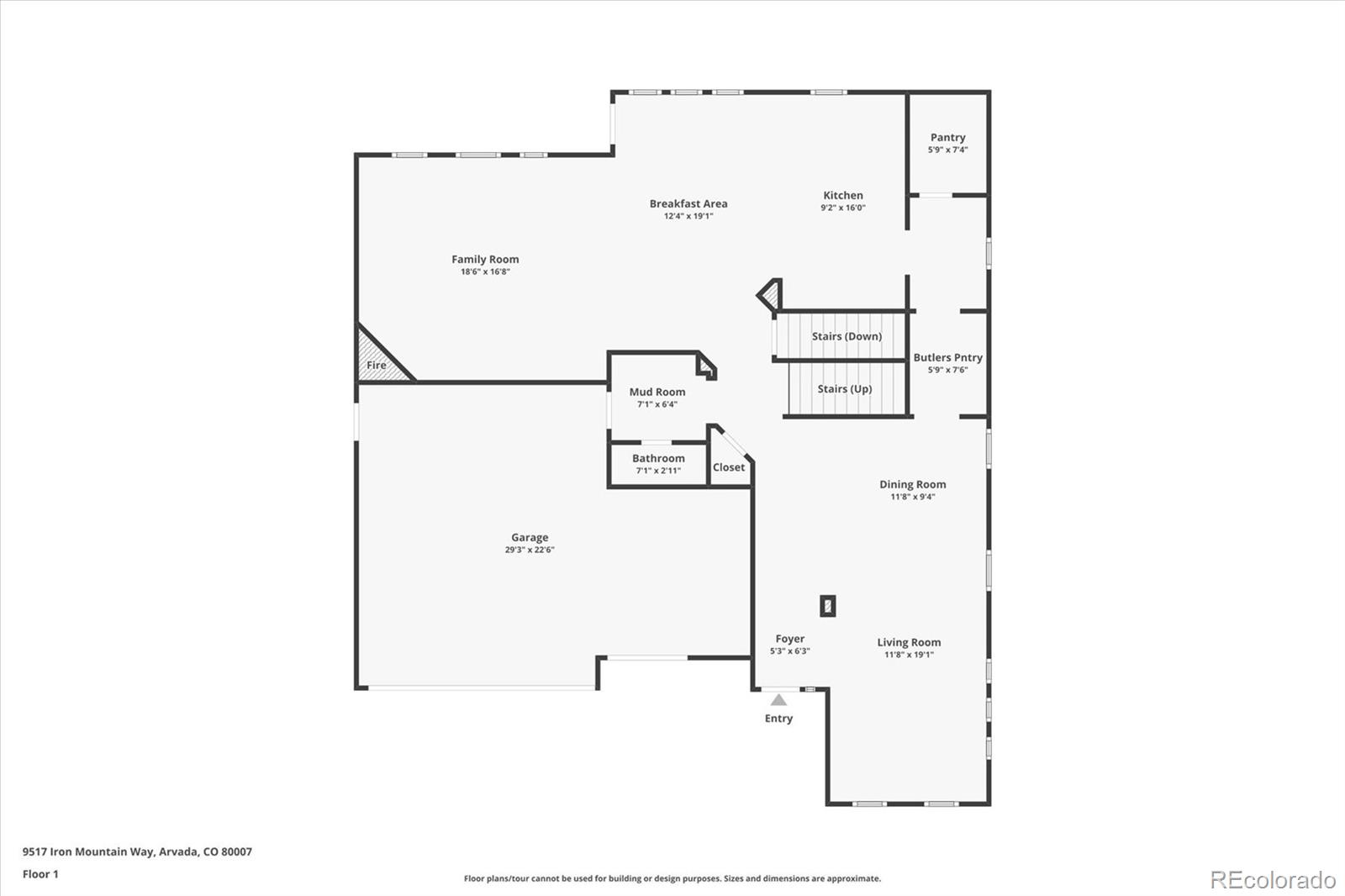
Exquisite home in highly sought-after Candelas, perfectly positioned on a premier lot with breathtaking panoramic mountain views. Offering over 4,900 total square feet, this four-bedroom, four-bath residence blends refined design with effortless livability. The open, light-filled floor plan is enhanced by expansive windows, extensive hardwood flooring, and a seamless connection to the magnificent natural surroundings. The chef's kitchen is a true showpiece, featuring upgraded cabinetry, a stylish backsplash, premium stainless steel appliances, double ovens, a gas range with modern hood, a large island, and a butler's pantry-ideal for both everyday living and elegant entertaining. The adjoining spacious family room is framed by large windows that showcase the home's stunning mountain backdrop, creating a warm and inviting atmosphere. The upper level hosts four generous bedrooms, including a luxurious primary suite with a cozy gas fireplace, serene seating area, and sweeping mountain views. The spa-inspired five-piece bath features elegant finishes and thoughtful design, while the three secondary bedrooms include a shared Jack-and-Jill bath and a private en-suite, offering comfort and privacy for family or guests. Step outside to a spectacular backyard retreat, perfectly designed for entertaining or relaxation, complete with a large patio, gazebo seating area, and built-in outdoor grill, all set against an incomparable mountain vista. Additional highlights include an unfinished 1,600-square-foot basement, ready for your custom vision, and a three-car garage. Ideally located with easy highway access and close proximity to trails, hiking, the foothills, and the city of Boulder, this remarkable home embodies the best of Colorado living-a rare combination of luxury, beauty, and tranquility.

Property Details of 9517 Iron Mountain Way

Map Location

Listed by Bob Kelly of Kentwood Real Estate DTC,LLC

The content relating to real estate for sale in this Web site comes in part from the Internet Data eXchange (“IDX”) program of METROLIST, INC., DBA RECOLORADO® Real estate listings held by brokers other than Amy Kriegbaum are marked with the IDX Logo. This information is being provided for the consumers’ personal, non-commercial use and may not be used for any other purpose. All information subject to change and should be independently verified.

This publication is designed to provide information with regard to the subject matter covered. It is displayed with the understanding that the publisher and authors are not engaged in rendering real estate, legal, accounting, tax, or other professional services and that the publisher and authors are not offering such advice in this publication. If real estate, legal, or other expert assistance is required, the services of a competent, professional person should be sought.

The information contained in this publication is subject to change without notice. METROLIST, INC., DBA RECOLORADO MAKES NO WARRANTY OF ANY KIND WITH REGARD TO THIS MATERIAL, INCLUDING, BUT NOT LIMITED TO, THE IMPLIED WARRANTIES OF MERCHANTABILITY AND FITNESS FOR A PARTICULAR PURPOSE. METROLIST, INC., DBA RECOLORADO SHALL NOT BE LIABLE FOR ERRORS CONTAINED HEREIN OR FOR ANY DAMAGES IN CONNECTION WITH THE FURNISHING, PERFORMANCE, OR USE OF THIS MATERIAL.

All real estate advertised herein is subject to the Federal Fair Housing Act and the Colorado Fair Housing Act, which Acts make it illegal to make or publish any advertisement that indicates any preference, limitation, or discrimination based on race, color, religion, sex, handicap, familial status, or national origin.

METROLIST, INC., DBA RECOLORADO will not knowingly accept any advertising for real estate that is in violation of the law. All persons are hereby informed that all dwellings advertised are available on an equal opportunity basis.

©2025 METROLIST, INC., DBA RECOLORADO® – All Rights Reserved 6455 S. Yosemite St., Suite 300 Greenwood Village, CO 80111 USA

ALL RIGHTS RESERVED WORLDWIDE. No part of this publication may be reproduced, adapted, translated, stored in a retrieval system or transmitted in any form or by any means, electronic, mechanical, photocopying, recording, or otherwise, without the prior written permission of the publisher. The information contained herein including but not limited to all text, photographs, digital images, virtual tours, may be seeded and monitored for protection and tracking.

Hi there! How can we help you?

Contact us using the form below or give us a call.

Send Us A Message:

By providing Amy Kriegbaum your contact information, you acknowledge and agree to our Privacy Policy and consent to receive marketing communications, including through automated calls, texts, and e-mails, some of which may use artificial or prerecorded voices. This consent is unnecessary for our services, and you may opt-out anytime. To opt out of texts, you can reply "stop" anytime. To opt out of e-mails, you can click on the unsubscribe link in the e-mails. Message and data rates may apply from your carriers.

Do not fill in this field:

This site is protected by reCAPTCHA and the Google Privacy Policy and Terms of Service apply.

Hi there! How can we help you?

Contact us using the form below or give us a call.

Send Us A Message:

Do not fill in this field:

This site is protected by reCAPTCHA and the Google Privacy Policy and Terms of Service apply.

Hi there! How can we help you?

Contact us using the form below or give us a call.

Send Us A Message:

Do not fill in this field:

This site is protected by reCAPTCHA and the Google Privacy Policy and Terms of Service apply.

Do not fill in this field:

This site is protected by reCAPTCHA and the Google Privacy Policy and Terms of Service apply.

Do not fill in this field:

This site is protected by reCAPTCHA and the Google Privacy Policy and Terms of Service apply.

Do not fill in this field:

This site is protected by reCAPTCHA and the Google Privacy Policy and Terms of Service apply.

$

Do not fill in this field:

This site is protected by reCAPTCHA and the Google Privacy Policy and Terms of Service apply.