Listing Tools

*** New Carpet ***Private Oasis in Arvada - Spacious, Secluded & Full of Charm. Welcome to your serene escape in the heart of Arvada! Situated on a generously sized lot, this private oasis offers the perfect blend of space, comfort, and natural beauty. Surrounded by mature trees and lush landscaping nourished by groundwater irrigation, the outdoor space is ideal for relaxing, entertaining, or simply enjoying nature in peace. Step inside to discover a spacious interior designed for both everyday living and entertaining. Whether you're hosting gatherings or enjoying a quiet evening at home, there's room for it all. Enjoy peace of mind with recent updates, including a NEW Class 4 impact-resistant roof, a NEW furnace, and a newer water heater (2024). The oversized 2-car garage provides abundant space for vehicles, tools, and extra storage. Whether you're sipping coffee under the trees or hosting friends in your private backyard retreat, this home is a rare gem in a prime Arvada location. Don't miss your chance to own this unique property that truly has it all!

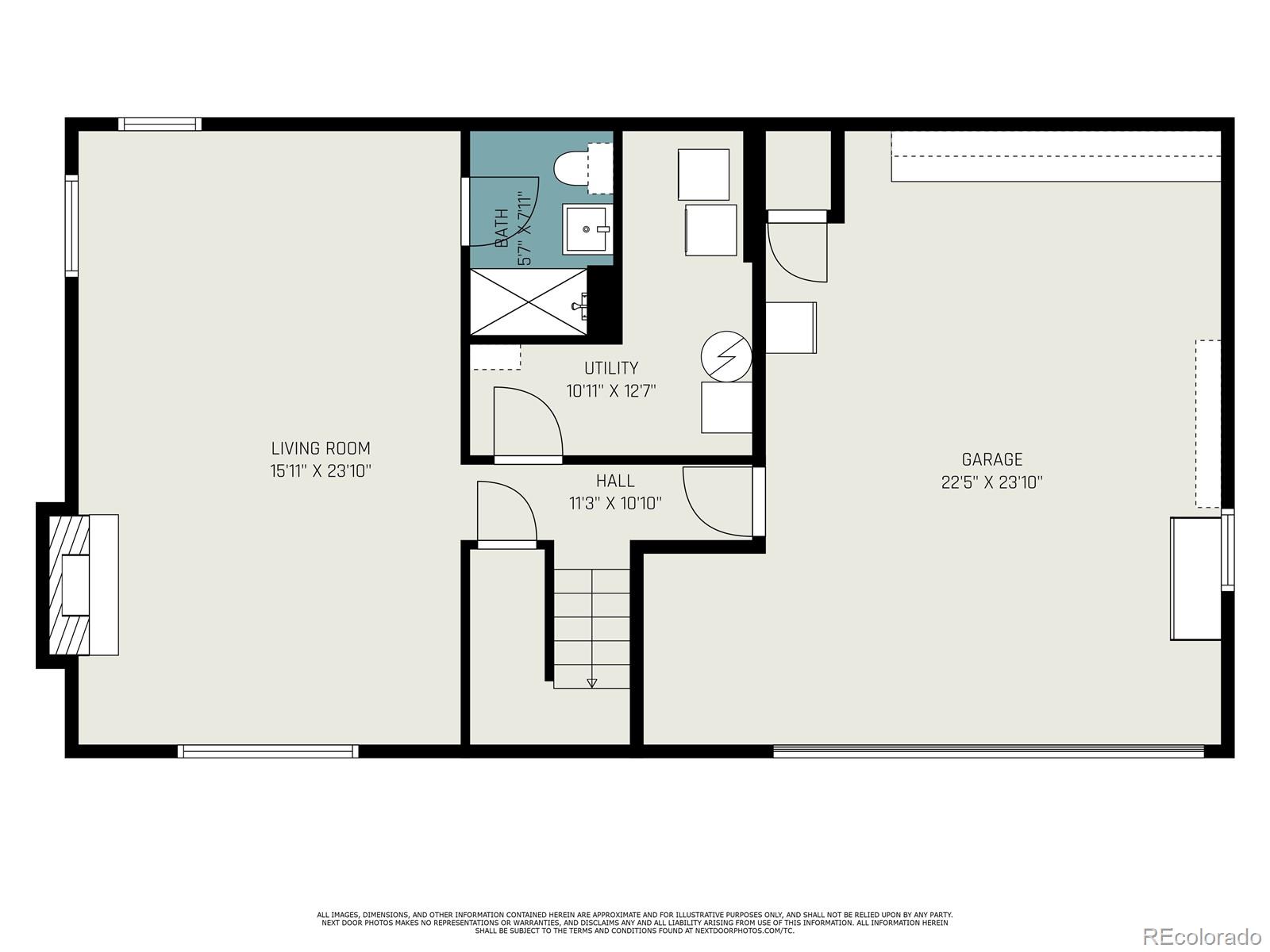
Property Details of 10171 W 69th Avenue

Map Location

Listed by Brian Greene of Cardinal Real Estate,LLC

The content relating to real estate for sale in this Web site comes in part from the Internet Data eXchange (“IDX”) program of METROLIST, INC., DBA RECOLORADO® Real estate listings held by brokers other than Amy Kriegbaum are marked with the IDX Logo. This information is being provided for the consumers’ personal, non-commercial use and may not be used for any other purpose. All information subject to change and should be independently verified.

This publication is designed to provide information with regard to the subject matter covered. It is displayed with the understanding that the publisher and authors are not engaged in rendering real estate, legal, accounting, tax, or other professional services and that the publisher and authors are not offering such advice in this publication. If real estate, legal, or other expert assistance is required, the services of a competent, professional person should be sought.

The information contained in this publication is subject to change without notice. METROLIST, INC., DBA RECOLORADO MAKES NO WARRANTY OF ANY KIND WITH REGARD TO THIS MATERIAL, INCLUDING, BUT NOT LIMITED TO, THE IMPLIED WARRANTIES OF MERCHANTABILITY AND FITNESS FOR A PARTICULAR PURPOSE. METROLIST, INC., DBA RECOLORADO SHALL NOT BE LIABLE FOR ERRORS CONTAINED HEREIN OR FOR ANY DAMAGES IN CONNECTION WITH THE FURNISHING, PERFORMANCE, OR USE OF THIS MATERIAL.

All real estate advertised herein is subject to the Federal Fair Housing Act and the Colorado Fair Housing Act, which Acts make it illegal to make or publish any advertisement that indicates any preference, limitation, or discrimination based on race, color, religion, sex, handicap, familial status, or national origin.

METROLIST, INC., DBA RECOLORADO will not knowingly accept any advertising for real estate that is in violation of the law. All persons are hereby informed that all dwellings advertised are available on an equal opportunity basis.

©2025 METROLIST, INC., DBA RECOLORADO® – All Rights Reserved 6455 S. Yosemite St., Suite 300 Greenwood Village, CO 80111 USA

ALL RIGHTS RESERVED WORLDWIDE. No part of this publication may be reproduced, adapted, translated, stored in a retrieval system or transmitted in any form or by any means, electronic, mechanical, photocopying, recording, or otherwise, without the prior written permission of the publisher. The information contained herein including but not limited to all text, photographs, digital images, virtual tours, may be seeded and monitored for protection and tracking.

Hi there! How can we help you?

Contact us using the form below or give us a call.

Send Us A Message:

By providing Amy Kriegbaum your contact information, you acknowledge and agree to our Privacy Policy and consent to receive marketing communications, including through automated calls, texts, and e-mails, some of which may use artificial or prerecorded voices. This consent is unnecessary for our services, and you may opt-out anytime. To opt out of texts, you can reply "stop" anytime. To opt out of e-mails, you can click on the unsubscribe link in the e-mails. Message and data rates may apply from your carriers.

Do not fill in this field:

This site is protected by reCAPTCHA and the Google Privacy Policy and Terms of Service apply.

Hi there! How can we help you?

Contact us using the form below or give us a call.

Send Us A Message:

Do not fill in this field:

This site is protected by reCAPTCHA and the Google Privacy Policy and Terms of Service apply.

Hi there! How can we help you?

Contact us using the form below or give us a call.

Send Us A Message:

Do not fill in this field:

This site is protected by reCAPTCHA and the Google Privacy Policy and Terms of Service apply.

Do not fill in this field:

This site is protected by reCAPTCHA and the Google Privacy Policy and Terms of Service apply.

Do not fill in this field:

This site is protected by reCAPTCHA and the Google Privacy Policy and Terms of Service apply.

Do not fill in this field:

This site is protected by reCAPTCHA and the Google Privacy Policy and Terms of Service apply.

$

Do not fill in this field:

This site is protected by reCAPTCHA and the Google Privacy Policy and Terms of Service apply.