Listing Tools

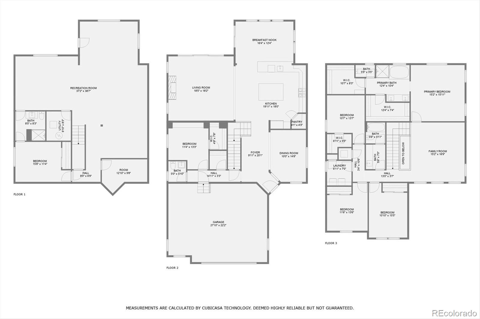
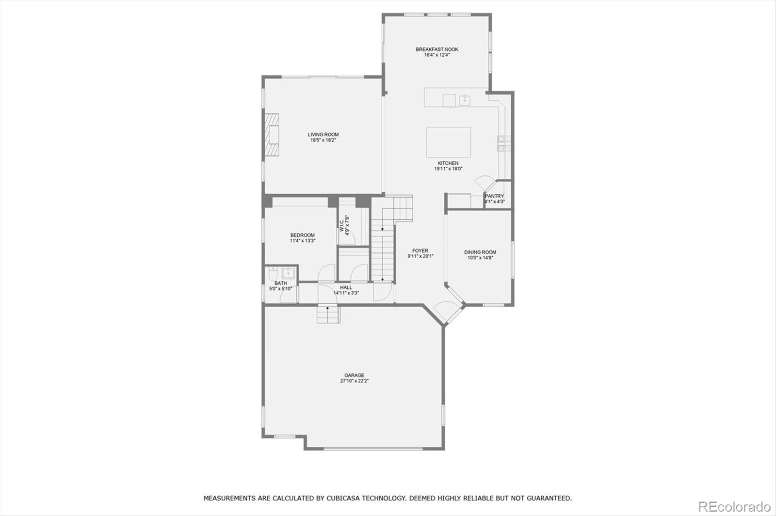
This is not just another luxury home-it's a rare and remarkable standout in the neighborhood, meticulously designed with custom features you won't find anywhere else! Every detail has been hand-selected to reflect a level of craftsmanship and style that elevates this property well beyond the ordinary. From lighting handcrafted in New York to oversized stacking glass doors paired with high end remote-controlled blinds, the transition from indoor to outdoor living is seamless. Step outside onto an expanded deck with modern iron railings that overlooks a professionally designed stamped concrete patio-complete with a fully outfitted outdoor kitchen and a custom fire pit that sets the stage for unforgettable evenings. Inside, the gourmet kitchen redefines elegance with a thoughtfully expanded island, premium appliances, and a genuine stone backsplash that infuses natural texture with high-end sophistication. The kitchen's eat-in area captures sweeping views, while the separate formal dining room offers a refined space for hosting dinner parties or holiday gatherings. Not just functional, but flexible-this home includes a main-floor bedroom with a walk-in closet generous enough to double as a home office or guest suite. Upstairs, the primary suite is a serene escape with dual walk-in closets, a spa-inspired bathroom featuring a glass-enclosed shower, and a deep soaking tub perfect for unwinding. The upper-level loft serves as an ideal retreat or flex space, framed by more custom lighting that reinforces the home's signature design aesthetic. Three additional bedrooms and a beautifully finished full bath complete the upstairs living area. And the fully finished walkout basement is plumbed for a wet bar and designed for entertaining or relaxing in style. A private bedroom and polished ¾ bath offer even more versatility. In a neighborhood of homes, this one sets the standard. Bold, sophisticated, and completely custom-this is more than a home. It's a statement!

Property Details of 7253 S Valleyhead Court

Map Location

Listed by Tori Whittaker of Compass - Denver

The content relating to real estate for sale in this Web site comes in part from the Internet Data eXchange (“IDX”) program of METROLIST, INC., DBA RECOLORADO® Real estate listings held by brokers other than Amy Kriegbaum are marked with the IDX Logo. This information is being provided for the consumers’ personal, non-commercial use and may not be used for any other purpose. All information subject to change and should be independently verified.

This publication is designed to provide information with regard to the subject matter covered. It is displayed with the understanding that the publisher and authors are not engaged in rendering real estate, legal, accounting, tax, or other professional services and that the publisher and authors are not offering such advice in this publication. If real estate, legal, or other expert assistance is required, the services of a competent, professional person should be sought.

The information contained in this publication is subject to change without notice. METROLIST, INC., DBA RECOLORADO MAKES NO WARRANTY OF ANY KIND WITH REGARD TO THIS MATERIAL, INCLUDING, BUT NOT LIMITED TO, THE IMPLIED WARRANTIES OF MERCHANTABILITY AND FITNESS FOR A PARTICULAR PURPOSE. METROLIST, INC., DBA RECOLORADO SHALL NOT BE LIABLE FOR ERRORS CONTAINED HEREIN OR FOR ANY DAMAGES IN CONNECTION WITH THE FURNISHING, PERFORMANCE, OR USE OF THIS MATERIAL.

All real estate advertised herein is subject to the Federal Fair Housing Act and the Colorado Fair Housing Act, which Acts make it illegal to make or publish any advertisement that indicates any preference, limitation, or discrimination based on race, color, religion, sex, handicap, familial status, or national origin.

METROLIST, INC., DBA RECOLORADO will not knowingly accept any advertising for real estate that is in violation of the law. All persons are hereby informed that all dwellings advertised are available on an equal opportunity basis.

©2025 METROLIST, INC., DBA RECOLORADO® – All Rights Reserved 6455 S. Yosemite St., Suite 300 Greenwood Village, CO 80111 USA

ALL RIGHTS RESERVED WORLDWIDE. No part of this publication may be reproduced, adapted, translated, stored in a retrieval system or transmitted in any form or by any means, electronic, mechanical, photocopying, recording, or otherwise, without the prior written permission of the publisher. The information contained herein including but not limited to all text, photographs, digital images, virtual tours, may be seeded and monitored for protection and tracking.

Hi there! How can we help you?

Contact us using the form below or give us a call.

Send Us A Message:

By providing Amy Kriegbaum your contact information, you acknowledge and agree to our Privacy Policy and consent to receive marketing communications, including through automated calls, texts, and e-mails, some of which may use artificial or prerecorded voices. This consent is unnecessary for our services, and you may opt-out anytime. To opt out of texts, you can reply "stop" anytime. To opt out of e-mails, you can click on the unsubscribe link in the e-mails. Message and data rates may apply from your carriers.

Do not fill in this field:

This site is protected by reCAPTCHA and the Google Privacy Policy and Terms of Service apply.

Hi there! How can we help you?

Contact us using the form below or give us a call.

Send Us A Message:

Do not fill in this field:

This site is protected by reCAPTCHA and the Google Privacy Policy and Terms of Service apply.

Hi there! How can we help you?

Contact us using the form below or give us a call.

Send Us A Message:

Do not fill in this field:

This site is protected by reCAPTCHA and the Google Privacy Policy and Terms of Service apply.

Do not fill in this field:

This site is protected by reCAPTCHA and the Google Privacy Policy and Terms of Service apply.

Do not fill in this field:

This site is protected by reCAPTCHA and the Google Privacy Policy and Terms of Service apply.

Do not fill in this field:

This site is protected by reCAPTCHA and the Google Privacy Policy and Terms of Service apply.

$

Do not fill in this field:

This site is protected by reCAPTCHA and the Google Privacy Policy and Terms of Service apply.